novembre 2020
novembre 2020
Abo

Vitrages d’ascenseurs E30 pour « The Circle »

Façades pare-feu : Forster Thermfix Vario

À l’aéroport de Zurich, The Circle, le plus vaste chantier de Suisse, est achevé au terme de cinq ans de travaux. Les structures internes ont aussi été terminées et livrées à l’exploitant. Les vitrages d’ascenseurs pare-feu transparents réalisés par Blaser Metallbau AG à l’aide de profilés poteaux-traverses filigranes en font partie.


Connexion

Merci de l’intérêt que vous portez à nos contenus. Les abonnés de la revue spécialisée metall trouveront le Login pour l’accès intégral dans les informations légales de la version imprimée actuelle. Le mot de passe change tous les mois.


Inscrivez-vous maintenant pour lire cet article. Inscrivez-vous pour lire les différents articles et payez très facilement par carte de crédit. (CHF 5.- par article)
En tant qu’utilisateur enregistré, vous pouvez accéder à tout moment à l’article acheté.

Si - en tant que professionnel dans les domaines de la construction métallique, en acier et de façades - vous n’êtes pas encore abonné à la revue spécialisée metall, ne perdez plus une seconde et souscrivez dès à présent votre abonnement ici.

Vitrage d’ascenseur de type H 12. Comme tous les éléments fabriqués par Blaser Metallbau AG à l’aide du Forster Thermfix Vario, cette fermeture répond elle aussi aux exigences de protection contre les incendies E30.
Vitrage d’ascenseur de type H 12. Comme tous les éléments fabriqués par Blaser Metallbau AG à l’aide du Forster Thermfix Vario, cette fermeture répond elle aussi aux exigences de protection contre les incendies E30.

Façades pare-feu : Forster Thermfix Vario

Vitrages d’ascenseurs E30 pour « The Circle »

À l’aéroport de Zurich, The Circle, le plus vaste chantier de Suisse, est achevé au terme de cinq ans de travaux. Les structures internes ont aussi été terminées et livrées à l’exploitant. Les vitrages d’ascenseurs pare-feu transparents réalisés par Blaser Metallbau AG à l’aide de profilés poteaux-traverses filigranes en font partie.

Texte : Rédaction, Photos : Blaser Metallbau AG

The Circle représente un développement rigoureux des centres commerciaux à l’aéroport. Baignant dans une ambiance de quartier commerçant international, la destination devient un endroit pour les affaires et le lifestyle, les marques, la médecine, la formation, la culture, le divertissement, l’hôtellerie et les congrès. Le public local et international bénéficiera de lieux tournés vers les services et la communication et les locataires profiteront d’espaces attrayants, très flexibles et sources de synergies. Au terme de cinq ans de travaux, l’ouvrage de l’architecte japonais vedette Riken Yamamoto offre à ses exploitants une surface utile nette de 180 000 m2.

Vitrages d’ascenseurs pare-feu

Blaser Metallbau AG a participé à l’aménagement intérieur. L’entreprise de construction métallique d’Andelfingen a conçu, produit et livré 500 m 2 de vitrages d’ascenseurs transparents et des chambranles en acier inoxydable pour les portes des ascenseurs. Les exigences techniques pesant sur ces composants sortaient de l’ordinaire, car ces fermetures internes devaient répondre à la classe de protection incendie E30.

Sélection du système de profilés Forster Thermfix Vario

Blaser a décidé de construire les divers éléments poteaux-traverses E30 à l’aide du système Forster Thermfix Vario. « Nous avons constaté que Forster Profilsysteme AG nous a parfaitement assistés pendant la phase d’évaluation au cours de laquelle il fallait sélectionner définitivement le système de profilés », a déclaré à « metall » Rolf Bechtold, chef de projet chez Blaser Metallbau AG, en ajoutant : « car il a fallu surmonter quelques difficultés techniques. D’autres critères tels qu’une formation solide, des caisses à outils spéciales, un produit esthétique de qualité et l’excellent rapport prix/prestation nous ont poussés à sélectionner Forster. »

Au total, Blaser a construit 22 éléments de vitrages d’ascenseurs E30 grâce au système Forster Thermfix Vario pour les trois ailes du bâtiment H 12, H 15 et H 16 dans plusieurs cœurs et sur huit étages. Cet article porte sur le vitrage d’ascenseur de type H 12, mais il s’applique aussi aux autres vitrages d’ascenseur.
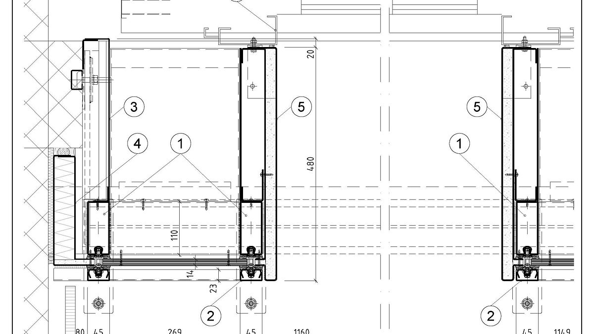
Le vitrage d’ascenseur H 12 de 4,8 m de large et de 6,5 m de haut est très transparent et raffiné avec ses baguettes de recouvrement filigranées dont la partie visible mesure à peine 45 mm de large. Sur ces vitrages d’ascenseur E30, il aurait été impossible d’utiliser plus de verre car les panneaux de raccordement périmétriques et les supports porteurs continus devaient satisfaire aux strictes exigences de la classe de protection incendie E30.
La façade à base de poteaux et de traverses construite pour des locaux non chauffés se compose d’un cadre périphérique fabriqué à partir de poutres en acier creuses de 45 mm de large par 110 mm de profondeur côté ascenseur, ainsi que de baguettes de recouvrement en aluminium incolores anodisées côté halle, toutes ces pièces étant issues du système Forster Thermfix Vario. Compte tenu de l’absence de chauffage, aucune rupture thermique n’a été nécessaire, ce qui a permis de sélectionner une épaisseur de vitrage d’à peine 14 mm. Bien que le système de profilés l’ait spécifié, il a été inutile de tenir compte de l’évacuation contrôlée de l’eau dans le système de drainage interne pour ces espaces intérieurs.

1. Poutre creuse en acier de 45 x 110, système Forster Thermfix Vario

2. Baguette de recouvrement en aluminium, système Forster Thermfix Vario

3. Tôle complémentaire de 2 mm en acier

4. Panneau de raccordement E30

5. Chambranle en inox E30

6. Chambranle de raccordement pour l’ascensoriste

  

« Nous avons constaté que Forster Profilsysteme AG nous a parfaitement assistés pendant la phase d’évaluation au cours de laquelle il fallait sélectionner définitivement le système de profilés » Rolf Bechtold, chef de projet chez Blaser Metallbau AG

Approfondissements de profilés à l’aide de tôles

Le vitrage d’ascenseur se divise en deux parties : la section en dessous des cinq pièces autour des portes de l’ascenseur et celle au-dessus des dix pièces comportant des vitres et des panneaux de remplissage. Fabriqué à partir d’une poutre IPE 160, le support porteur évoqué plus haut est installé directement au-dessus des portes pour reprendre les efforts dans la maçonnerie latérale et pour suspendre les portes de l’ascenseur. Il est évident que ce type de construction assorti d’extensions de profilés et d’habillages de supports E30 sort de l’ordinaire et qu’il a nécessité divers développements avant d’aboutir à ce système.
La profondeur de cadre totale de l’ensemble de la construction est de 500 mm. Des pièces en tôle d’acier internes courbées complètent les profilés Forster Thermfix Vario pour former un chambranle de 500 mm de profondeur. La fixation a été réalisée sur tout le pourtour à l’aide de languettes en acier plat soudées qui ont été vissées dans les rails bétonnés sur le chantier. Des fixations à ancres implantées par perçage n’étaient pas admissibles. Les chambranles de fermeture E30 posés sur la maçonnerie sont assemblés pour constituer des panneaux en tôle d’acier à deux coques. Une fois remplis de panneaux en gypse Promatec et de laine minérale, ils satisfont aux exigences techniques anti-incendie.
Les chambranles d’ascenseurs sont élégants et robustes. Comprenant des tôles en inox plusieurs fois chanfreinées et adossées à des panneaux en gypse en guise de remplissage, ils forment des panneaux résistants à la chaleur et à la pression. Du Pilkington Pyrodur 30-200 revêtu d’un film en PVB de 0,76 mm a été utilisé pour tous les vitrages.

Les faibles largeurs visibles des baguettes de recouvrement du Forster Thermfix Vario (45 mm) permettent de réaliser des constructions très transparentes.
Les faibles largeurs visibles des baguettes de recouvrement du Forster Thermfix Vario (45 mm) permettent de réaliser des constructions très transparentes.

Planification minutieuse de la livraison et du montage

Sur des chantiers de cette ampleur, les entrepreneurs doivent délivrer des prestations logistiques et administratives différentes de celles d’un centre commercial ordinaire. Un outil de planification en ligne était disponible pour organiser les livraisons. Il fallait y annoncer au moins trois jours à l’avance les livraisons prévues. L’espace de transbordement et les engins de levage requis (grue) devaient être réservés. Pour être acceptée, la livraison devait avoir lieu sur une plage de 15 minutes.
Forster Profilsysteme AG a parfaitement géré toutes les propositions de solutions et toutes les livraisons de matériel exigées et a respecté les échéances à chaque phase.

 

Un verre anti-incendie E30 neutre de type Pilkington Pyrodur 30-200 revêtu d’un film en PVB de 0,76 mm pour une épaisseur totale de 14 mm a été utilisé sur tous les vitrages.
Un verre anti-incendie E30 neutre de type Pilkington Pyrodur 30-200 revêtu d’un film en PVB de 0,76 mm pour une épaisseur totale de 14 mm a été utilisé sur tous les vitrages.

The Circle – un défi intéressant

« Cette opération a été compliquée par la répartition de nos vitrages sur trois ailes du bâtiment comportant plusieurs cœurs et étages », a ajouté M. Bechtold. « Nous avons rencontré des difficultés dès le métrage. Outre le métrage sur la maçonnerie, il fallait tenir compte d’autres particularités telles que des ascenseurs, des conduites, des goulottes déjà installés, mais aussi des habillages de murs et de plafonds, des revêtements de sol et des portes attenantes en cours de planification et les intégrer à la conception. En plus des exigences architecturales, les nombreuses interfaces avec d’autres entreprises et les différentes instances de validation ont aussi occasionné des difficultés tout au long de la planification.
Rétrospectivement, on constate que la planification détaillée de la logistique et le temps passé à préparer les achats et la production nous ont été bénéfiques. Grâce à notre nouveau logiciel d’ERP AP+, nous étions en mesure de planifier toutes les phases et de respecter les contraintes de qualité et le calendrier. »      ■

Bautafel / Panneau de chantier

Maître d’ouvrage :
Aéroport de Zurich/Swiss Life
Donneur d’ordre :
HRS GU AG, Zurich
Architecte :
Riken Yamamoto, Toko
Construction métallique des vitrages d’ascenseurs :
Blaser Metallbau AG, Andelfingen
Système de profilés :
forster thermfix vario, 45 mm

Le recueil des directives techniques de construction métallique – technique de construction (ch. 1.13) contient des informations sur la « protection incendie ».