août 2021
août 2021
Abo

Toit futuriste pour le parc des expositions de Vérone

Construction métallique / matières synthétiques

Réalisée en 2020, l’installation de l’avant-toit du parc des expositions de Vérone est la première étape de la rénovation du site. La construction en acier de plus de 17 m de haut réalisée par l’entreprise sud-tyrolienne Pichler Projects allie éléments de construction légers et en métal.


Connexion

Merci de l’intérêt que vous portez à nos contenus. Les abonnés de la revue spécialisée metall trouveront le Login pour l’accès intégral dans les informations légales de la version imprimée actuelle. Le mot de passe change tous les mois.


Inscrivez-vous maintenant pour lire cet article. Inscrivez-vous pour lire les différents articles et payez très facilement par carte de crédit. (CHF 5.- par article)
En tant qu’utilisateur enregistré, vous pouvez accéder à tout moment à l’article acheté.

Si - en tant que professionnel dans les domaines de la construction métallique, en acier et de façades - vous n’êtes pas encore abonné à la revue spécialisée metall, ne perdez plus une seconde et souscrivez dès à présent votre abonnement ici.

Situé à Vérone, l’énorme toit repose sur douze piliers qui s’ouvrent vers le haut, tels des arbres. L’ensemble de la structure porteuse se compose de tubes ronds de différents diamètres.
Situé à Vérone, l’énorme toit repose sur douze piliers qui s’ouvrent vers le haut, tels des arbres. L’ensemble de la structure porteuse se compose de tubes ronds de différents diamètres.

Construction métallique / matières synthétiques

Toit futuriste pour le parc des expositions de Vérone

Réalisée en 2020, l’installation de l’avant-toit du parc des expositions de Vérone est la première étape de la rénovation du site. La construction en acier de plus de 17 m de haut réalisée par l’entreprise sud-tyrolienne Pichler Projects allie éléments de construction légers et en métal.

Texte : Patrick Bock / Photos : The Piranesi Experience / Graphiques : Pichler Projects

D’emblée, on aperçoit des arbres en métal sur lesquels s’étend une ossature métallique alvéolaire recouverte de coussins d’air. Tels des nuages, les modules de l’installation disposés en forme de L flottent au-dessus de l’entrée sud du parc des expositions de Vérone. Cet élément architectonique phare aux finitions innovantes optimise la construction de l’ouvrage métallique de 495 tonnes et permet une nouvelle utilisation plus vaste de l’espace extérieur. Simultanément, l’avant-toit permet de relier les halles d’exposition.
Le projet émane du bureau d’ingénierie et de conception de charpentes Maffeis Engineering. Son CEO et fondateur Massimo Maffeis a proposé à l’organisateur de salons Veronafiere de transformer la zone d’accès secondaire pratiquement délaissée en un élément moderne qui attire le regard et de l’aménager pour une utilisation plus large. Le vaste projet, qui recouvre une surface de 6750 m², a été réalisé conjointement avec les ingénieurs d’Ente Fiera, sans accroc en un minimum de temps. Une planification précise et un travail de montage efficace ont été nécessaires pour respecter les délais serrés et mettre au mieux en œuvre le concept imaginé.

Métal creux et coussins en légers en matière synthétique

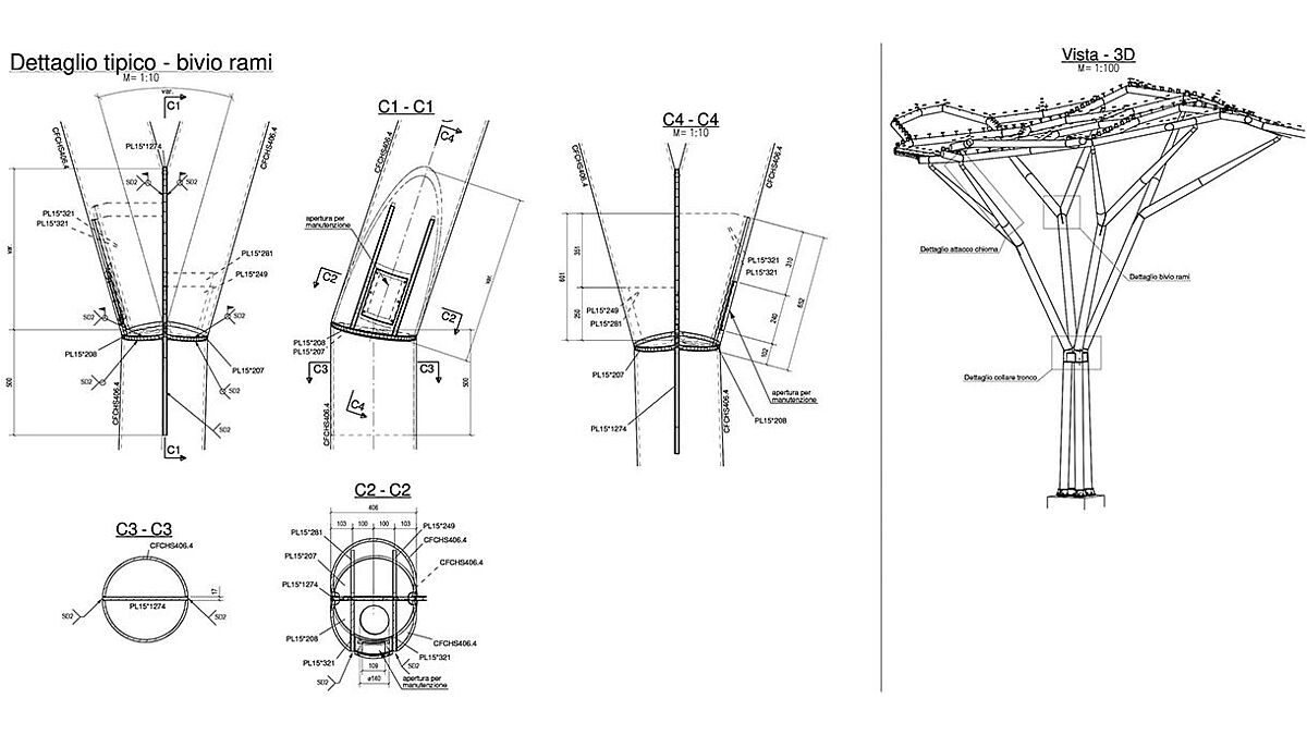
Le toit repose sur douze piliers en tubes d’acier ronds de 406 mm de diamètre qui s’ouvrent vers le haut, tels des arbres. Composés de plusieurs tubes, les troncs se ramifient à partir d’un nœud pour former le premier niveau de branches. De chacune de ces branches du premier niveau partent deux rameaux d’un diamètre de 169 mm qui supportent le toit. Le recouvrement en métal du toit se compose également de tubes en acier de 323 mm de diamètre à l’épaisseur variable, aux motifs irréguliers et dont la hauteur varie sur 3 m.
« Le toit devait se composer de Voronoï, des modules hexagonaux irréguliers », explique Stefano Rossi, directeur de Maffeis Engineering Suisse. « Comme nous avions besoin d’environ 1000 de ces hexagones pour couvrir toute la surface, nous n’avons pas pu tous les assembler sur place. Nous avons donc conçu un module maître composé de 36 Voronoï reproductible à l’infini. » Les Voronoï présentent différents angles d’inclinaison et sont revêtus de « coussins » fabriqués à partir d’éthylène tétrafluoroéthylène (ETFE), une matière synthétique innovante. Outre sa transparence et sa légèreté, ce matériau se distingue aussi par sa résistance aux influences climatiques ; la matière est isolante, totalement perméable à la lumière et aux UV et entièrement recyclable. À l’aide d’un système de répartiteurs entraîné par quatre pompes, l’air arrive dans les coussins, de sorte qu’une pression constante soit conservée pour le maintien de leur forme et de leur inclinaison.
 

L’avant-toit d’environ 495 tonnes permet une nouvelle utilisation plus vaste et sert en même temps d’élément de liaison avec l’espace extérieur du parc des expositions.
L’avant-toit d’environ 495 tonnes permet une nouvelle utilisation plus vaste et sert en même temps d’élément de liaison avec l’espace extérieur du parc des expositions.

L’inclinaison fait la différence

Pour la planification du toit en coussins en ETFE, il a été tenu compte d’une adaptation optimale à toutes les conditions climatiques. Pour que les visiteurs n’aient pas à aller d’une halle à l’autre en plein soleil, les films utilisés pour les revêtements synthétiques ont été imprimés avec trois perméabilités à la lumière différentes selon l’inclinaison et l’orientation du module. Le film des surfaces fortement inclinées a été moins imprimé que celui des surfaces totalement exposées au soleil. Mais l’inclinaison remplit aussi une autre fonction : en cas de pluie, l’eau converge vers le point le plus bas du macro-module, à savoir chacun de ses 36 coussins, comme dans un bassin. Au moyen d’un système de siphon dans la structure métallique, l’eau de pluie est dirigée de l’extérieur vers le sol de manière invisible à travers les tubes creux en acier.

Les Voronoï présentent différents angles d’inclinaison et sont revêtus de « coussins » fabriqués à partir d’éthylène tétrafluoroéthylène (ETFE), un matériau synthétique innovant.
Les Voronoï présentent différents angles d’inclinaison et sont revêtus de « coussins » fabriqués à partir d’éthylène tétrafluoroéthylène (ETFE), un matériau synthétique innovant.

Planification précise

« Notre mission a commencé par le développement d’un modèle en 3D au moyen de la planification BIM que nous avons reçue de Maffeis Engineering », explique Hannes Market, membre de la direction de l’entreprise de construction métallique et de façades Pichler Projects. Le projet paramétrique réalisé avec la solution logicielle FEMM développée par Maffeis Engineering en vue d’une modélisation et de calculs uniformes a servi de base à différents modèles. Ceux-ci ont été importés dans Straus7 pour des calculs statiques ainsi que dans Revit pour le dessin et ont ainsi pu être visualisés rapidement et facilement par Pichler, puis édités.
Parmi les défis, Hannes Market mentionne la planification détaillée en accord avec les techniques concernant le toit en ETFE : « Ce fut une phase cruciale car toute la structure du toit est exempte de vis ; tous les éléments ont été soudés. » Les nombreuses ramifications et jonctions dans la structure ont nécessité une extrême précision dès la planification au moyen du logiciel Tekla. C’était le seul moyen de garantir un soudage sans accroc sur le chantier.

La mise en œuvre rapide et réussie du projet est due à l’interaction de tous les intervenants.
La mise en œuvre rapide et réussie du projet est due à l’interaction de tous les intervenants.

 

Avant la production, une maquette d’un élément de toit a été réalisée dans l’usine de Pichler à Bolzano. Cela a permis de contrôler, valider et, le cas échéant, adapter toutes les décisions de construction et projets dès la phase de conception. « À l’issue des études de réalisation, Pichler s’est occupé de toutes les autres étapes du chantier, de la fabrication des éléments de construction en acier qui composent toute la structure jusqu’à la livraison et au montage des matériaux sur le chantier », poursuit Hannes Market. « Notre atout est que tous ces processus se déroulent en interne, ce qui nous permet de travailler encore plus efficacement. »

On identifie clairement les différents systèmes d’évacuation des eaux du toit de 6750 m².
On identifie clairement les différents systèmes d’évacuation des eaux du toit de 6750 m².

Gain de temps grâce à un montage optimisé

Les travaux de montage pour Pichler Projects se sont déroulés en coordination précise avec toutes les entreprises impliquées et en équipe. Comme le parc des expositions était en partie ouvert pendant les travaux, les phases de travaux ont dû être planifiées et exécutées entre les événements. Cela a resserré les délais de construction malgré l’organisation du travail en deux équipes. Une collaboration étroite de toutes les entreprises s’est avérée indispensable pour respecter le planning : « Cela n’a été possible que grâce à une planification et une production détaillées de la construction. Nous avons en outre réalisé des contrôles quotidiens grâce auxquels nous avons pu créer une structure organisationnelle idéale tout en faisant preuve de la flexibilité nécessaire », souligne Hannes Market. Pour pouvoir travailler encore plus efficacement pendant la phase de travaux, des solutions ad hoc issues de la phase de conception ont été utilisées. À titre d’exemple, nous avons limité le travail en hauteur en assemblant au sol les macro-modules, dont la taille maximale est de 30 x 25 m pour un poids de 23 tonnes. Ce n’est qu’ensuite qu’ils ont été soudés ensemble.

Vue en 3D du toit supporté par douze piliers en forme d’arbres.
Vue en 3D du toit supporté par douze piliers en forme d’arbres.

 

 

Jonctions et soudures des différents poteaux.
Jonctions et soudures des différents poteaux.

 

La mise en œuvre rapide et réussie du projet est due à l’interaction de tous les intervenants. « Le projet se distingue désormais par son caractère unique qui correspond précisément à ce que le client a imaginé. D’autres constructions répondant au même concept devraient voir le jour sur le site du parc des expositions et nous en sommes ravis », déclare Stefano Rossi. « Cette réussite n’aurait pas été possible sans le travail de tous les intervenants, qui ont fait preuve d’une énorme force d’innovation. C’est la première étape d’une nouvelle orientation pour Veronafiere. »

Panneau de chantier

Projet :

Piazza «Re Teodorico», Verona

Maître d’ouvrage :

Veronafiere s.p.a. Verona

Architecte :

Maffeis Engineering s.p.a. Solagna

Ingénieur :

Maffeis Engineering GmbH, Zurich

Construction métallique :

Pichler Projects GmbH, Bolzano

Membrane de toit : Vector Foiltec, Bremen (D)