octobre 2020
octobre 2020
Abo

Portes pour voies d’évacuation

Technique de porte

Les voies d’évacuation doivent à tout moment pouvoir être utilisées en toute sécurité. Si elles sont pourvues de portes, ces dernières doivent s’ouvrir facilement en appuyant sur la poignée, la barre antipanique ou via un dispositif automatique. Cet article énumère les critères principaux pour l’entreprise de construction métallique. 


Connexion

Merci de l’intérêt que vous portez à nos contenus. Les abonnés de la revue spécialisée metall trouveront le Login pour l’accès intégral dans les informations légales de la version imprimée actuelle. Le mot de passe change tous les mois.


Inscrivez-vous maintenant pour lire cet article. Inscrivez-vous pour lire les différents articles et payez très facilement par carte de crédit. (CHF 5.- par article)
En tant qu’utilisateur enregistré, vous pouvez accéder à tout moment à l’article acheté.

Si - en tant que professionnel dans les domaines de la construction métallique, en acier et de façades - vous n’êtes pas encore abonné à la revue spécialisée metall, ne perdez plus une seconde et souscrivez dès à présent votre abonnement ici.

Les systèmes de fermeture contrôlés selon les normes SN EN 179 et SN EN 1125 (illustration) satisfont à l’exigence selon laquelle les portes des voies d’évacuation et de sauvetage s’ouvrent toujours dans le sens d’évacuation.
Les systèmes de fermeture contrôlés selon les normes SN EN 179 et SN EN 1125 (illustration) satisfont à l’exigence selon laquelle les portes des voies d’évacuation et de sauvetage s’ouvrent toujours dans le sens d’évacuation.

Technique de porte

Portes pour voies d’évacuation

Les voies d’évacuation doivent à tout moment pouvoir être utilisées en toute sécurité. Si elles sont pourvues de portes, ces dernières doivent s’ouvrir facilement en appuyant sur la poignée, la barre antipanique ou via un dispositif automatique. Cet article énumère les critères principaux pour l’entreprise de construction métallique. 

Texte, photos et schéma : rédaction.
Source : fiche technique TK 004 www.metaltecsuisse. ch/technik

Les constructeurs doivent planifier et produire des portes pour voies d’évacuation qui répondent à la fois aux exigences légales, normatives et fonctionnelles. L’autorité compétente en matière de protection incendie fixe les lois qui définissent les exigences minimales portant sur les portes des voies d’évacuation, en collaboration avec l’office de l’inspection du travail dès que des emplois sont concernés.

Objectifs de protection des portes d’évacuation

Les systèmes de fermeture contrôlés selon les normes SN EN 179 et SN EN 1125 satisfont à l’exigence selon laquelle les portes des voies d’évacuation et de sauvetage s’ouvrent toujours facilement en grand dans le sens d’évacuation. Les portes des voies d’évacuation doivent donc répondre aux objectifs de protection définis pour les portes d’évacuation. Par conséquent, elles doivent toujours :

●être indiquées comme telles
(signalées de façon visible, p. ex. par des panneaux lumineux d’issue de secours), 

●pouvoir s’ouvrir rapidement et sans outils dans le sens d’évacuation
(les normes SN EN 179 et SN EN 1125 exigent que l’ouverture de la porte se fasse dans le sens d’évacuation en une seconde et par un seul mouvement),

●pouvoir être utilisées en toute sécurité
(pas d’objets entravant leur ouverture). Les portes doivent être réalisées en adéquation avec le site. Elles ne doivent pas sortir de leurs charnières ni se déformer en fonctionnement normal (résistance aux effets climatiques tels que la chaleur, etc.) au point de ne plus pouvoir s’ouvrir. Les portes antipanique doivent s’ouvrir sous une précharge de 1000 N.
Les portes de secours que nous rencontrons habituellement répondent aux normes SN EN 179 (version mécanique) et prEN 13637 (version électrique).

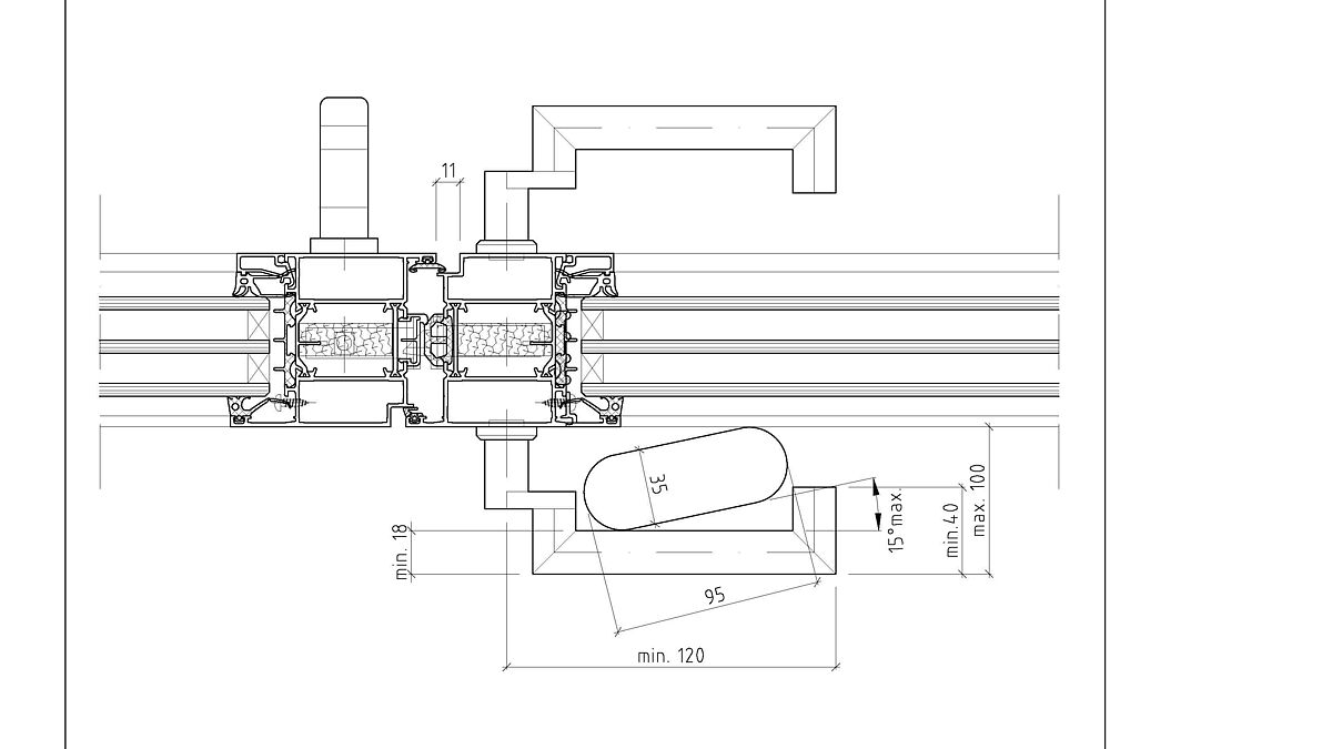
La distance de feuillure entre le vantail mobile et le vantail semi-fixe au niveau de la mortaise sert à éviter les contraintes en utilisant un « vantail antipanique » de 11 mm à la place d’un « vantail standard » de 5 mm (légère variation possible selon le fabricant du système de profilés).

Largeurs des portes

La largeur utile des portes des voies d’évacuation doit être définie en fonction du nombre possible d’occupants (voir la directive de protection incendie de l’AEAI « Voies d’évacuation et de sauvetage »). Elle est déterminée par le local recevant le plus grand nombre de personnes. La largeur utile minimale est de 900 mm. En fonction du nombre d’occupants, elle est étendue par multiples de 600 mm, à savoir 1200 mm, 1800 mm ou 2400 mm. Pour les portes à deux vantaux qui permettent une ouverture dans un seul sens, un vantail doit présenter une largeur libre d’au moins 0,90 m. Pour les portes va-et-vient à deux vantaux, la largeur libre de chaque vantail doit être d’au moins 0,65 m. Pour les portes à deux vantaux, le vantail semi-fixe doit uniquement disposer de fonctions d’évacuation si le vantail mobile ne présente pas la largeur utile exigée.
La hauteur de passage libre des portes doit être de 2,0 m et celle des voies d’évacuation horizontales d’au moins 2,1 m. Des écarts sont possibles en fonction de l’usage et doivent être clarifiés pour chaque objet.

Portes d’issues de secours selon SN EN 179

Les portes des voies d’évacuation doivent toujours pouvoir s’ouvrir dans le sens d’évacuation. Les portes de secours que nous rencontrons habituellement répondent à la norme SN EN 179 (version mécanique). De telles portes sont équipées d’une poignée (ou béquille) et doivent pouvoir s’ouvrir à tout moment dans le sens d’évacuation. Pour ouvrir la porte d’une issue de secours, il faut actionner volontairement la poignée. D’après la norme SN EN 179, la porte d’une issue de secours doit s’ouvrir en un seul mouvement de la main. Il est possible d’utiliser la norme SN EN 179 tant que l’ouverture de la porte dans le sens d’évacuation est exclusivement mécanique, même si l’accès est électrique, c’est-à-dire si les entrées sont contrôlées.

Portes avec barre antipanique selon SN EN 1125

Les issues antipanique mécaniques selon SN EN 1125 sont équipées de barres dites de poussée ou antipanique. Il est possible d’ouvrir involontairement une porte antipanique, p. ex. si quelqu’un est poussé contre elle lors d’une bousculade. Ce type de porte s’ouvre toujours dans le sens d’évacuation.

Fonctions des fermetures antipanique mécaniques

La fermeture antipanique est conçue de sorte à pouvoir s’ouvrir à tout moment sans outils par actionnement de la poignée ou de la barre de poussée/antipanique. Les pênes demi-tour et dormant se rétractent alors, même si la serrure a été préalablement fermée à clé. De nos jours, on utilise généralement des serrures antipanique autoverrouillantes. Un dispositif spécial repousse le pêne dans la serrure lorsque la porte se referme afin de la verrouiller à nouveau.

Antipanique partielle/intégrale

Pour les portes à deux vantaux, on distingue les variantes suivantes :
Antipanique partielle :
ouverture antipanique uniquement sur le vantail mobile. Le vantail semi-fixe reste fermé.

Antipanique intégrale :
ouverture antipanique sur le vantail semi-fixe et sur le vantail mobile. Cette variante nécessite un clapet de fermeture supplémentaire. La distance de feuillure entre le vantail mobile et le vantail semi-fixe au niveau de la mortaise sert à éviter les contraintes en utilisant un « vantail antipanique » de 11 mm à la place d’un « vantail standard » de 5 mm (légère variation possible selon le fabricant du système de profilés).


Les dimensions minimales et maximales de la poignée sont conformes à la norme SN EN 179.
Les dimensions minimales et maximales de la poignée sont conformes à la norme SN EN 179.

Poignée

Lors du choix de la poignée, veiller à minimiser le risque d’accrochage des vêtements. La norme SN EN 179 prescrit des poignées aux dimensions minimales et maximales adaptées (voir l’illustration).