janvier 2021
janvier 2021
Abo

Métal et verre à déguster

Fenêtres et façades

Macardo : amateurs de whisky, gardez bien ce nom en tête. La Macardo Swiss Distillery, à Strohwilen dans le canton de Thurgovie, s’est développée et convainc désormais par des infrastructures ultramodernes dans de nouveaux bâtiments d’exploitation. Sur le plan technique, les nouveaux bâtiments se caractérisent par l’utilisation de divers matériaux de construction haut de gamme : métal et verre.


Connexion

Merci de l’intérêt que vous portez à nos contenus. Les abonnés de la revue spécialisée metall trouveront le Login pour l’accès intégral dans les informations légales de la version imprimée actuelle. Le mot de passe change tous les mois.


Inscrivez-vous maintenant pour lire cet article. Inscrivez-vous pour lire les différents articles et payez très facilement par carte de crédit. (CHF 5.- par article)
En tant qu’utilisateur enregistré, vous pouvez accéder à tout moment à l’article acheté.

Si - en tant que professionnel dans les domaines de la construction métallique, en acier et de façades - vous n’êtes pas encore abonné à la revue spécialisée metall, ne perdez plus une seconde et souscrivez dès à présent votre abonnement ici.

À gauche, la distillerie, à droite le dépôt de fûts. Le jeu de couleurs évoque les couleurs automnales naturelles du paysage thurgovien.
À gauche, la distillerie, à droite le dépôt de fûts. Le jeu de couleurs évoque les couleurs automnales naturelles du paysage thurgovien.

Fenêtres et façades

Métal et verre à déguster

Macardo : amateurs de whisky, gardez bien ce nom en tête. La Macardo Swiss Distillery, à Strohwilen dans le canton de Thurgovie, s’est développée et convainc désormais par des infrastructures ultramodernes dans de nouveaux bâtiments d’exploitation. Sur le plan technique, les nouveaux bâtiments se caractérisent par l’utilisation de divers matériaux de construction haut de gamme : métal et verre.

Texte : rédaction, illustrations : Daniel Schmid, agence BBK et Ernst Weber AG

Voici quelques semaines, Martina et Andreas Bössow ont inauguré leur univers de plaisirs gustatifs et d’expériences, la Macardo Swiss Distillery, à Strohwilen, dans la commune d’Amlikon-Bissegg. En seulement deux ans de travaux, l’ancienne fromagerie érigée en 1904 a été agrandie et complétée par de nouveaux bâtiments spectaculaires. L’ancien bâtiment abrite aujourd’hui la distillerie. Quant aux nouvelles constructions voisines, elles regroupent une boutique, une salle pour événements, un lounge, des chambres d’hôtes et, à côté, un dépôt de fûts.

Pour gourmets visionnaires

Outre son activité principale de production de whiskys et d’autres spécialités à haute teneur en alcool, Macardo a beaucoup à offrir aux gourmets. Que vous soyez amateur de whiskys ou de cocktails fruités, le plaisir est garanti au Honesty Bar & Cigar Lounge de Macardo. Les clients apprécieront autant l’intérieur stylé que la vaste terrasse extérieure avec vue sur l’Alpstein et le Säntis.
Le service hôtelier comprenant dix chambres confortables et spacieuses avec petit-déjeuner ainsi que deux appartements permet aux hôtes de passer une soirée agréable et de profiter au réveil d’une vue panoramique impressionnante. La boutique aménagée de façon rustique présente toute la gamme Macardo. Des dégustations y sont aussi organisées régulièrement pour les clients.

 

« Pour notre entreprise, le principal défi de cette façade fut clairement la logistique »: Roman Rüttimann, directeur de Ernst Weber AG

 

Distillerie au feu de bois

Dans l’ancienne fromagerie construite voici plus de cent ans, les générations se sont succédé pour transformer des matières premières de grande qualité en spécialités haut de gamme. Les fromages d’autrefois ont cédé la place à des whiskys, spiritueux, vieilles eaux-de-vie et marcs de Macardo.
Ici, la distillation se fait à la main, délicatement, en petites quantités et selon des procédés traditionnels.
« Nous sommes une des rares distilleries de Suisse à encore recourir au feu de bois », raconte Andreas Bössow à Metall. Et d’ajouter : « Nous tenons à cet artisanat. Le feu fait partie de notre identité et de notre philosophie. Nous l’associons à des technologies innovantes et à un concept de durabilité unique dans la branche, ce qui nous permet de produire à Strohwilen des distillats nobles qui portent notre signature ».

Côté est, la façade est également ornée de lames profilées colorées.
Côté est, la façade est également ornée de lames profilées colorées.

Nouvelle construction sous le signe de la durabilité

Pour planifier et réaliser le nouveau bâtiment, Martina et Andreas Bössow ont privilégié des solutions durables et optimisées sur le plan énergétique. Le refroidissement se fait avec de l’eau de source et le chauffage fait appel au bois, à l’énergie solaire et à la géothermie. Pour l’enveloppe du bâtiment, seuls des composants hautement isolés ont été utilisés. Il n’y a aucune perte d’énergie. Même les eaux usées sont exploitées. Quant au marc (les résidus de distillation), il est converti en énergie dans une installation de biogaz.

Verre et profilés colorés pour le dépôt de fûts

Sans conteste, l’« entrepôt à whiskys », un haut bâtiment tout en longueur avec sa baie vitrée qui donne sur la rue et ses façades en lamelles longitudinales et colorées présente un aspect unique. Avec l’ancien bâtiment, il représente l’entrée de la boutique et de l’accueil. Le jeu de couleurs des façades évoque les couleurs automnales naturelles du paysage thurgovien. La façade pensée comme un rideau et ventilée par l’arrière comporte précisément de 16 couleurs différentes. Elles sont disposées de façon irrégulière sans qu’aucune succession rythmique n’y soit identifiable. Il n’y a qu’au niveau des couleurs blanches légèrement dominantes que des distances minimales d’un mètre et plus peuvent être constatées.

Les lames colorées se composent de profilés rectangulaires en aluminium sur mesure avec canaux de vissage intérieurs. La longueur totale des lames usinées est de 6,8 km. Une fois coupés et usinés, les profilés ont été teintés par poudrage dans les couleurs mentionnées. Les divisions verticales des façades du bâtiment sont bien visibles. Les bandes présentent des largeurs différentes et chacune d’elles se compose de quatre éléments de façades superposés. À cet effet, des bandes de tôle verticales découpées au laser ont été vissées aux lames profilées pour former les unités correspondantes. Les éléments ont été montés successivement, de bas en haut, sur des ossatures spéciales munies d’un système d’accrochage sécurisé. Les éléments de fenêtres intégrés à la façade sont fixés dans des cadres en tôle et se démarquent clairement de l’enveloppe de façade, tant techniquement que visuellement.

« Pour notre entreprise, le principal défi de cette façade fut clairement la logistique », explique Roman Rüttimann, directeur de Ernst Weber AG, en charge de la réalisation. « Entreposer plus de 2000 profilés dans 16 couleurs différentes et dans diverses longueurs, les visser dans l’ordre correct, mais irrégulier, sur les cadres correspondants et les monter de manière logique sur l’ossature du bâtiment a exigé une procédure bien pensée et beaucoup de concentration de la part de tous les intervenants ».

Vue intérieure de la baie vitrée du dépôt de fûts.
Vue intérieure de la baie vitrée du dépôt de fûts.

Une imposante baie vitrée pour le dépôt de fûts

L’énorme baie vitrée du dépôt de fûts qui s’élève jusqu’au faîtage donne l’impression d’avoir été construite pour accueillir les clients et invités. Le cadre noir en tôle, le verre réfléchissant et l’effet filigrané des traverses lui confèrent une certaine élégance. Pour le cadre et les traverses de la façade de 5 m de large et 9 m de haut, c’est le système WD72 de Heroal qui a été utilisé. La façade se compose de quatre éléments superposés et est fixée entre les deux murs en béton. Les côtés extérieurs des profils à languettes se trouvent tous sur le même alignement. La particularité de cette structure est l’association de profils à languettes en aluminium et de poteaux-traverses nécessaires à la statique.
Côté intérieur, trois profilés d’assemblage et de soutien se trouvent au niveau de chaque jonction entre éléments. Ces poutres horizontales composées de RHS 150 x 100 x 8 relient et stabilisent les deux murs en béton tout en stabilisant / supportant la façade en aluminium. Côté extérieur, des composants poteaux-traverses en applique de Raico sont soudés sur les tubes d’acier solides. Les façades avec leurs profils à languettes sont insérées horizontalement, comme du verre, dans les systèmes de profilés poteaux-traverses. Seules les baguettes de recouvrement continues se détachent légèrement du plan de façade.

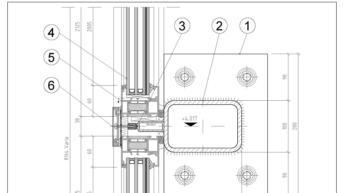
Coupe horizontale d’un profilé statique de la baie vitrée du dépôt de fûts. La façade se compose de quatre éléments superposés.1 Plaque de fixation du profilé statique2 Profilé statique 150 x 100 x 8 mm3 Profilé en applique soudé, système Raico4 Triple vitrage isolant5 Profil à languette, système Heroal WD726 Baguette de recouvrement en aluminium (horizontale)
Coupe horizontale d’un profilé statique de la baie vitrée du dépôt de fûts. La façade se compose de quatre éléments superposés.
1 Plaque de fixation du profilé statique
2 Profilé statique 150 x 100 x 8 mm
3 Profilé en applique soudé, système Raico
4 Triple vitrage isolant
5 Profil à languette, système Heroal WD72
6 Baguette de recouvrement en aluminium (horizontale)

Cinq sommets pour la façade sud

Homogénéité, rythme du métal sombre et verre légèrement réfléchissant prédominent sur la façade sud. Derrière se trouvent, au rez-de-chaussée, le lounge, les bureaux, des salles communes et, aux étages, les vastes chambres d’hôtes aux teintes assorties.
Côté sud, la façade est divisée en cinq segments par les habillages des poteaux verticaux. Combinés aux habillages des faîtes, ces segments semblent former cinq façades partielles placées dans des niches qui, de par leurs formes, évoquent la silhouette des Churfirsten tout proches.
En regardant de plus près, on constate que ces cinq façades partielles, de 7 m de large et 12 m de haut chacune, se situent sur deux niveaux différents. L’observateur porté sur la géométrie peut constater que ces cinq façades partielles dissimulent des formes complexes. Les côtés frontaux de la construction en éléments en béton sont sur un même plan. Mais les murs qui mènent vers l’intérieur et auxquels les façades sont également reliées sont en oblique par rapport au plan de façade.
Cela a entraîné différents raccords tridimensionnels au niveau de la maçonnerie et de la construction en bois au dernier étage. Les habillages en tôle se sont ainsi révélés complexes et ont nécessité de nombreuses coupes d’onglet en trois dimensions.

Les cinq pointes de la façade sud évoquent les Churfirsten tout proches.
Les cinq pointes de la façade sud évoquent les Churfirsten tout proches.

Séparation des éléments au niveau des étages

De par sa construction, la façade sud s’accorde largement à la grande baie vitrée du dépôt de fûts. Les différents éléments séparés par étage constitués de profils à languettes Heroal du système WD72 y sont également superposés. La construction présente deux entresols en béton qui soutiennent et guident la transition entre les éléments. Seul le dernier étage a été doté d’un RRK 100 x 100 x 10 horizontal en guise de renfort et de soutien. Côté extérieur, il est aussi doté d’une construction en applique Raico soudée et reprend les profils du cadre des façades. Côté intérieur, ces poutres métalliques sont revêtues de panneaux difficilement inflammables.
Des panneaux d’aluminium sont insérés dans ces zones de séparation entre étages. Côté extérieur, un coffret en tôles continu crée l’homogénéité souhaitée. Tandis qu’aux étages, des stores à lamelles y sont intégrés, au rez-de-chaussée, ce sont des stores à bras articulés qui assurent la protection solaire en raison de la présence de portes.
Les habillages des poteaux en applique déjà mentionnés sont en tôles d’aluminium courbées plusieurs fois. Accrochés à l’aide de boulons, ils sont fixés à un profilé vertical de manière à pouvoir se dilater. Ces caissons en tôles agencés verticalement dissimulent d’autres infrastructures, comme p. ex. les écoulements pour toiture et les enceintes musicales, et servent à fixer un futur éclairage LED.
Les façades ont été fixées aux chevrons au moyen d’un profilé en U en deux parties capable d’absorber sans bruit les éventuels mouvements de la construction en bois.

 

Façade d’entrée vers la boutique : construite dans le même style que la façade sud, la porte coulissante automatisée avec sas est accueillante et évite tout refroidissement non désiré de l’air ambiant.
Façade d’entrée vers la boutique : construite dans le même style que la façade sud, la porte coulissante automatisée avec sas est accueillante et évite tout refroidissement non désiré de l’air ambiant.

De nombreux autres éléments de construction en métal

Outre une façade d’entrée complexe vers la boutique, Ernst Weber AG a produit et livré de nombreux autres éléments de construction en métal, comme les portes avec contrôle d’accès, les fermetures coupe-feu, les fenêtres intérieures et extérieures et même l’abribus qui jouxte directement le bâtiment et destiné aux lignes régionales de bus. ■

Deux vitrages coupe-feu forment un corridor protégé à l’intérieur.
Deux vitrages coupe-feu forment un corridor protégé à l’intérieur.

 

Panneau de chantier

Projet :
Macardo Swiss Distillerie, Amlikon-Bissegg
Maître d’ouvrage :
Martina et Andreas Bössow, Amlikon-Bisseg
Architecte :
Architecture Design & Development, Dubaï
Façades et construction métallique :
Ernst Weber AG, Wetzikon