octobre 2020
octobre 2020
Abo

 Bâtir pour demain

Technologie des fenêtres

Lors de son inauguration en 1953, l’immeuble Plärrer de 15 étages à Nuremberg était le plus haut bâtiment de Bavière. Ce complexe compte environ 1060 fenêtres basculantes, qui ont été reproduites au cours d’un récent projet de rénovation dans l’esprit de la conservation des monuments historiques, mais sans sacrifier les exigences modernes telles que l’isolation thermique et la durabilité.


Connexion

Merci de l’intérêt que vous portez à nos contenus. Les abonnés de la revue spécialisée metall trouveront le Login pour l’accès intégral dans les informations légales de la version imprimée actuelle. Le mot de passe change tous les mois.


Inscrivez-vous maintenant pour lire cet article. Inscrivez-vous pour lire les différents articles et payez très facilement par carte de crédit. (CHF 5.- par article)
En tant qu’utilisateur enregistré, vous pouvez accéder à tout moment à l’article acheté.

Si - en tant que professionnel dans les domaines de la construction métallique, en acier et de façades - vous n’êtes pas encore abonné à la revue spécialisée metall, ne perdez plus une seconde et souscrivez dès à présent votre abonnement ici.

Ces deux bâtiments comptent 1060 fenêtres basculantes.
Ces deux bâtiments comptent 1060 fenêtres basculantes.

Technologie des fenêtres

 Bâtir pour demain

Lors de son inauguration en 1953, l’immeuble Plärrer de 15 étages à Nuremberg était le plus haut bâtiment de Bavière. Ce complexe compte environ 1060 fenêtres basculantes, qui ont été reproduites au cours d’un récent projet de rénovation dans l’esprit de la conservation des monuments historiques, mais sans sacrifier les exigences modernes telles que l’isolation thermique et la durabilité.

Forster Profilsysteme AG

Construit selon les plans de Wilhelm Schlegtendal, l’immeuble Plärrer a été achevé en 1953 dans la ville presque entièrement détruite de Nuremberg. Il appartient au complexe des Travaux publics de la Ville de Nuremberg créé à cette époque, qui comprend également un long corps de bâtiment à trois étages. Ces deux bâtiments comptent 1060 fenêtres basculantes. En raison du simple vitrage mis en œuvre lors de la construction et de la mauvaise isolation thermique, toutes les fenêtres avaient été remplacées dans les années 1980 par des fenêtres oscillo-battantes offrant une meilleure isolation.

Respect de l’original

En tant qu’ancien bâtiment le plus haut de l’État libre de Bavière, l’immeuble Plärrer faisait et fait toujours l'objet d'une « vigilance particulière en matière de préservation de son statut de monument historique », explique Gunnar Sellien, l’architecte responsable du projet au sein du bureau Knerer und Lang, qui a été chargé de la rénovation. Ce projet lancé en 2016 ne s’est pas contenté de mettre l’ensemble du complexe immobilier en conformité avec les normes requises en matière de protection contre les incendies et d’isolation thermique et phonique. « Nous devions également restaurer l’aspect original du complexe, qui a été classé sous protection des monuments historiques en 1988 », poursuit Gunnar Sellien. Un système composite d'isolation thermique a donc été installé sur la façade, composé d’allèges de fenêtre en pierre ponce et d’une structure en béton visible. La restauration fidèle des fenêtres basculantes étroites, un élément distinctif du bâtiment, a été un autre défi. L'appel d’offres spécifiait « une fenêtre composite basculante avec protection solaire intégrée et un vantail battant interne permettant les travaux d'inspection et de nettoyage à position basculante fermée ». Jürg Egli, responsable de la gestion des bâtiments chez Forster Profilsysteme AG, explique avec un sourire que cette longue description indique clairement la complexité technique de la mission de développement.

Prototype développé

Après avoir pris connaissance d’un appel d’offres à l'échelle européenne, Forster Profilsysteme AG a mis au point un prototype en collaboration avec les architectes en vue de devenir le fournisseur du système. Sellien, l’architecte responsable du projet, souligne combien il a été impressionné par l'engagement de la société suisse, qui était prête à développer un prototype pour le soumettre à des tests. Ce prototype a permis non seulement de présenter au maître d'ouvrage de la société N-ERGIE Aktiengesellschaft un châssis de fenêtre fonctionnel, mais aussi de documenter ses caractéristiques en matière de contraintes mécaniques, de fonctionnement sur la durée, de résistance aux chocs, d'isolation phonique et de comportement à la condensation.

Poids lourd

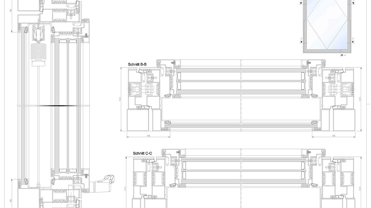
Le vantail basculant de toutes les fenêtres peut être décrit comme une fenêtre composite double de 16 cm d’épaisseur dotée d’une protection solaire intégrée. Pour l’inspection et le nettoyage, ce vantail et les vitres sont accessibles par un vantail battant intérieur qui se déverrouille à l’aide d’une poignée enfichable. Alors que le vitrage extérieur est en verre de sécurité feuilleté, l'isolation thermique est assurée par le triple vitrage isolant du vantail d’inspection intérieur. Les vitres ne sont pas teintées, la protection solaire est assurée par des stores à lamelles électriques extérieurs.
Les fenêtres basculantes, qui mesurent chacune 1853 mm de haut sur 1310 mm de large, sont extrêmement lourdes et pèsent 250 kg, auxquels s’ajoutent les 50 kg du cadre extérieur. « Au lieu de placer les unités d’un poids total de 300 kg sur les allèges en pierre ponce comme auparavant, elles reposent désormais sur des profilés en U en acier que nous avons insérés entre les supports de la façade », explique Gunnar Sellien.

Forster a développé une fenêtre composite basculante avec protection solaire intégrée et un vantail battant interne permettant les travaux d’inspection et de nettoyage à position basculante fermée.
Forster a développé une fenêtre composite basculante avec protection solaire intégrée et un vantail battant interne permettant les travaux d’inspection et de nettoyage à position basculante fermée.

Durabilité et sens du détail

Le maître d’ouvrage accorde une grande importance à la durabilité des cadres des fenêtres, qui doit être bien supérieure au cycle de vie habituel de 25 à 30 ans. Trois détails soigneusement étudiés contribuent de manière essentielle à la durabilité requise de la solution: le palier tournant, l’isolant et le faible coefficient de dilatation du cadre en acier. Le palier tournant est un axe creux à paroi épaisse d'un diamètre de 15 mm, à l’intérieur duquel passe le câblage du système de protection solaire. Étant donné que les fenêtres basculantes ne doivent être ouvertes que d'environ 12 cm, l'angle de cisaillement de seulement 7,5° se traduit par une faible torsion pour le câble basse tension intégré dans le palier tournant.
Les cadres basculants sont basés sur le profilé Forster Unico. Forster n’utilise pas d’isolants en plastique placés entre les cadres intérieur et extérieur en acier galvanisé en continu, mais un treillis en acier inoxydable de haute qualité. L’acier inoxydable présente le grand avantage de ne devenir ni fragile ni cassant au fil du temps, à la différence du plastique. De plus, cet isolant réduit également la charge calorifique. En cas d’incendie, l’isolant n’est pas un accélérateur et ne dégage pas de gaz toxiques. La combustion des isolants ne peut pas causer la chute des coques extérieures des fenêtres sur cet immeuble.
Les coins du cadre des fenêtres en acier ne sont pas solidarisés en onglet, mais soudés pour former une seule unité. Il n’existe donc aucun joint au travers duquel l’humidité puisse pénétrer dans les cadres. Les fenêtres sont dotées d’une finition de surface répondant à la classe de corrosivité C4 et revêtues d’une couleur claire résistante aux UV.
Les fenêtres basculantes se ferment à l’aide de ferrures carrées qui assurent un verrouillage en périphérie du cadre extérieur et plaquent la fenêtre dans le cadre sur tous les côtés. Seules ces fonctions ont permis d’obtenir pour ce bâtiment une étanchéité suffisante à la succion du vent et à l’eau, ainsi que de respecter l'isolation phonique demandée de 47 dB.
Pour démontrer sa durabilité, Forster Profilsysteme AG a soumis sa fenêtre basculante à un test de fonctionnement longue durée. Les séries de test habituelles comprenant entre 5000 et 20 000 cycles ont été décuplées pour soumettre les fenêtres basculantes de l’immeuble Plärrer à des tests de 200 000 cycles.

Angles en verre sur le toit

Outre les fenêtres basculantes de la tour et du bâtiment à trois étages des ateliers, il fallait également remplacer le vitrage fixe du dernier étage construit en retrait. Le système de façade de type montant-traverse Forster Thermfix Vario Hi a été utilisé ici. Avec une largeur visible de seulement 45 mm et un coefficient Uf de 0,49 W, il permettait de garantir une isolation thermique obéissant aux critères actuels tout en préservant le caractère d’origine du bâtiment: la façade de verre a été inclinée vers l’intérieur, conformément aux plans d’origine. En outre, les profilés extérieurs laissent toujours apparaître les têtes des vis qui maintiennent le verre dans la sous-structure. Le vitrage périphérique présente des angles en verre dissimulés par un étroit profilé. Deux fenêtres de fuite du système Forster Unico permettant de procéder à un sauvetage par la terrasse du toit en cas d'incendie, ont été ajoutées à la structure.
Au terme de presque quatre ans de rénovation, les fenêtres de l’immeuble Plärrer ont retrouvé leur splendeur de 1953. « L’esthétique d'origine a été restaurée. Forster Profilsysteme AG a proposé la meilleure solution technique disponible », assure Gunnar Sellien.

. ■

L’acier inoxydable présente le grand avantage de ne devenir ni fragile ni cassant au fil du temps, à la différence du plastique.

Bautafel / Panneau de chantier

Project

Plärrer Hochhaus Berlin

Architecte

Knerer und Lang Architekten, Dresden

Metallbauer

MTZ Metalltechnik Zitzmann, Oerlenbach

Fournisseur profile

Forster Profilsysteme AG, Arbon

Das Fachregelwerk Metallbauerhandwerk – Konstruktionstechnik enthält im Kap. 2.1 wichtige Informationen zum Thema «Fenster».