Oktober 2020
Oktober 2020
Abo

Türen in Fluchtwegen

Türtechnik

Fluchtwege müssen jederzeit sicher benutzt werden können. Sind diese Fluchtwege mit Türen versehen, so müssen sich diese auf einfache Weise, durch Herabdrücken des Drückers, Betätigen der Panikstange oder automatisch öffnen lassen. Im Beitrag sind die für den Metallbauunternehmer wesentlichen Kriterien aufgeführt. 


Login

Danke für Ihr Interesse an unseren Inhalten. Abonnenten der Fachzeitschrift metall finden das Login für den Vollzugriff im Impressum der aktuellen Printausgabe. Das Passwort ändert monatlich.


Jetzt registrieren und lesen. Registrieren Sie sich um einzelne Artikel zu lesen und einfach per Kreditkarte zu bezahlen. (CHF 5,- pro Artikel)
Als registrierter Benutzer haben Sie jederzeit Zugriff auf Ihre gekauften Artikel.

Sollten Sie als interessierte Fachkraft im Metall-, Stahl- und Fassadenbau die Fachzeitschrift metall tatsächlich noch nicht abonniert haben, verlieren Sie keine Zeit und bestellen Sie Ihr persönliches Abonnement gleich hier.

Die nach SN EN 179 und SN EN 1125 (Bild) geprüften Verschlusssysteme erfüllen die Forderung, dass sich Türen in Flucht- und Rettungswegen jederzeit in Fluchtrichtung öffnen lassen.
Die nach SN EN 179 und SN EN 1125 (Bild) geprüften Verschlusssysteme erfüllen die Forderung, dass sich Türen in Flucht- und Rettungswegen jederzeit in Fluchtrichtung öffnen lassen.

Türtechnik

Türen in Fluchtwegen

Fluchtwege müssen jederzeit sicher benutzt werden können. Sind diese Fluchtwege mit Türen versehen, so müssen sich diese auf einfache Weise, durch Herabdrücken des Drückers, Betätigen der Panikstange oder automatisch öffnen lassen. Im Beitrag sind die für den Metallbauunternehmer wesentlichen Kriterien aufgeführt. 

Text, Foto und Grafik: Redaktion. Textquelle: Merkblatt TK 004 www.metaltecsuisse.ch /technik

Für die Hersteller soll es das Ziel sein, Türen in Fluchtwegen so zu planen und zu produzieren, dass sowohl die gesetzlichen und normativen wie auch die betrieblichen Anforderungen erfüllt werden. Über die gesetzlichen Mindestanforderungen an Türen in Fluchtwegen entscheidet die zuständige Brandschutzbehörde und – sobald Arbeitsplätze betroffen sind – auch das Arbeitsinspektorat.

Schutzziele für Fluchttüren

Die nach SN EN 179 und SN EN 1125 geprüften Verschlusssysteme erfüllen die Forderung, dass sich Türen in Flucht- und Rettungswegen jederzeit in Fluchtrichtung, leicht und in voller Breite öffnen lassen müssen. Demzufolge müssen Türen in Fluchtwegen dem definierten Schutzziel für Fluchttüren entsprechen. Dieses lauten:

●Türen in Fluchtwegen müssen jederzeit als solche erkannt werden. 
Türen in Fluchtwegen sind gut sichtbar zu bezeichnen, z.B. durch leuchtende Rettungszeichen.

●Türen in Fluchtwegen müssen jederzeit in Fluchtrichtung ohne Hilfsmittel rasch geöffnet werden können.
Gemäss den Normen SN EN 179 und SN EN 1125 muss ein Fluchtwegtürverschluss so gebaut sein, dass er die Türe in Fluchtrichtung mit einer einzigen Handbewegung innerhalb einer Sekunde freigibt.

●Türen in Fluchtwegen müssen jederzeit sicher benützt werden können.
Das Öffnen der Türen darf nicht durch Gegenstände behindert werden. Die Türen müssen standortgerecht ausgeführt sein. Sie dürfen nicht aus der Führung fallen und sich im Normalbetrieb nicht so weit verformen (Standfestigkeit bei klimatischen Einwirkungen wie Wärme usw.), dass sie nicht mehr geöffnet werden können. Die Paniktüren müssen sich unter Vorlast von 1000 N öffnen lassen.
Die bei uns üblichen Notausgangstüren entsprechen den Normen SN EN 179 (mechanisch) und prEN 13637 (elektrisch).

Die Falzdistanz im Stulpbereich zwischen Geh- und Standflügel wird zur Vermeidung von Zwängungen mittels Verwendung eines «Panikflügels» statt eines «Standardflügels» von 5 mm auf 11 mm erhöht (Wert kann je nach Profilsystemhersteller geringfügig abweichen).

Türbreiten

Die nutzbare Breite von Türen in Fluchtwegen ist nach der möglichen Personenbelegung zu bemessen (siehe VKF-Brandschutzrichtlinie «Flucht- und Rettungswege»). Der Raum mit der grössten Personenbelegung bestimmt die erforderliche Breite. Die minimale nutzbare Breite beträgt 900 mm. Je nach Personenbelegung wird die Breite auf ein Vielfaches von 600 mm erweitert, d.h. 1200 mm, 1800 mm oder 2400 mm. Bei zweiflügeligen Türen, die sich nur in eine Richtung öffnen lassen, muss ein Flügel eine lichte Breite von mindestens 0,90 m aufweisen. Bei zweiflügeligen Pendeltüren muss die lichte Breite jedes Flügels mindestens 0,65 m betragen. Bei zweiflügligen Türen muss der Standflügel nur dann Fluchtwegeigenschaften aufweisen, wenn der Gehflügel die geforderte nutzbare Breite nicht aufweist.
Die lichte Durchgangshöhe von Türen hat 2,0 m und die von horizontalen Fluchtwegen mindestens 2,1 m zu betragen. Nutzungsbezogen sind Abweichungen möglich und objektbezogen abzuklären.

Notausgangstüre nach SN EN 179

Türen in Fluchtwegen müssen immer in Fluchtrichtung geöffnet werden können. Die bei uns üblichen Notausgangstüren entsprechen den Normen SN EN 179 (mechanisch). Solche Türen sind mit einem Türdrücker ausgestattet und müssen jederzeit in Fluchtrichtung geöffnet werden können. Für das Öffnen einer Notausgangstüre ist eine bewusste Betätigung des Türdrückers notwendig. Das Öffnen einer Notausgangstüre nach SN EN 179 muss mit maximal einer Handbewegung erfolgen können. Solange die Türöffnung in Fluchtrichtung ausschliesslich mechanisch erfolgt, kann die SN EN 179 angewendet werden, auch wenn der Eintritt elektrisch gesteuert ist, also Zutrittskontrolle für den Eintritt besteht.

Panikausgangstüre SN EN 1125

Mechanische Panikausgänge nach SN EN 1125 sind mit so genannten Griff- und Druckstangen ausgerüstet. Das Öffnen einer Panikausgangstüre kann auch unbewusst, z.B. durch Körperdruck bei einem Gedränge vor der Tür, erfolgen. Panikausgangstüren müssen immer in Fluchtrichtung öffnen.

Funktionen von mechanischen Panikschlössern

Das Panikschloss ist so konstruiert, dass es in Fluchtrichtung jederzeit ohne Hilfsmittel über die Betätigung des Drückers bzw. der Griff- und Druckstangen geöffnet werden kann. Dabei werden die Schlossfalle und der Schlossriegel zurückgezogen, auch wenn das Schloss mittels Schlüssel zuvor verriegelt wurde. Heute werden häufig selbstverriegelnde Panikschlösser (SVP) verwendet. Beim Schliessen der Türe wird der Schlossriegel durch eine spezielle Einrichtung im Schloss ausgestossen und die Türe ist wieder verriegelt.

Teilpanik / Vollpanik

Bei 2-flügeligen Türen wird zwischen folgenden Versionen unterschieden:
Teilpanik
Paniköffnung nur über den Gehflügel. Der Standflügel bleibt geschlossen.

Vollpanik:
Die Paniköffnung ist über den Geh- und den Standflügel möglich. Dies erfordert zusätzlich eine Mitnehmerklappe. Die Falzdistanz im Stulpbereich zwischen Geh- und Standflügel wird zur Vermeidung von Zwängungen mittels Verwendung eines «Panikflügels» statt eines «Standardflügels» von 5 mm auf 11 mm erhöht (Wert kann je nach Profilsystemhersteller geringfügig abweichen).


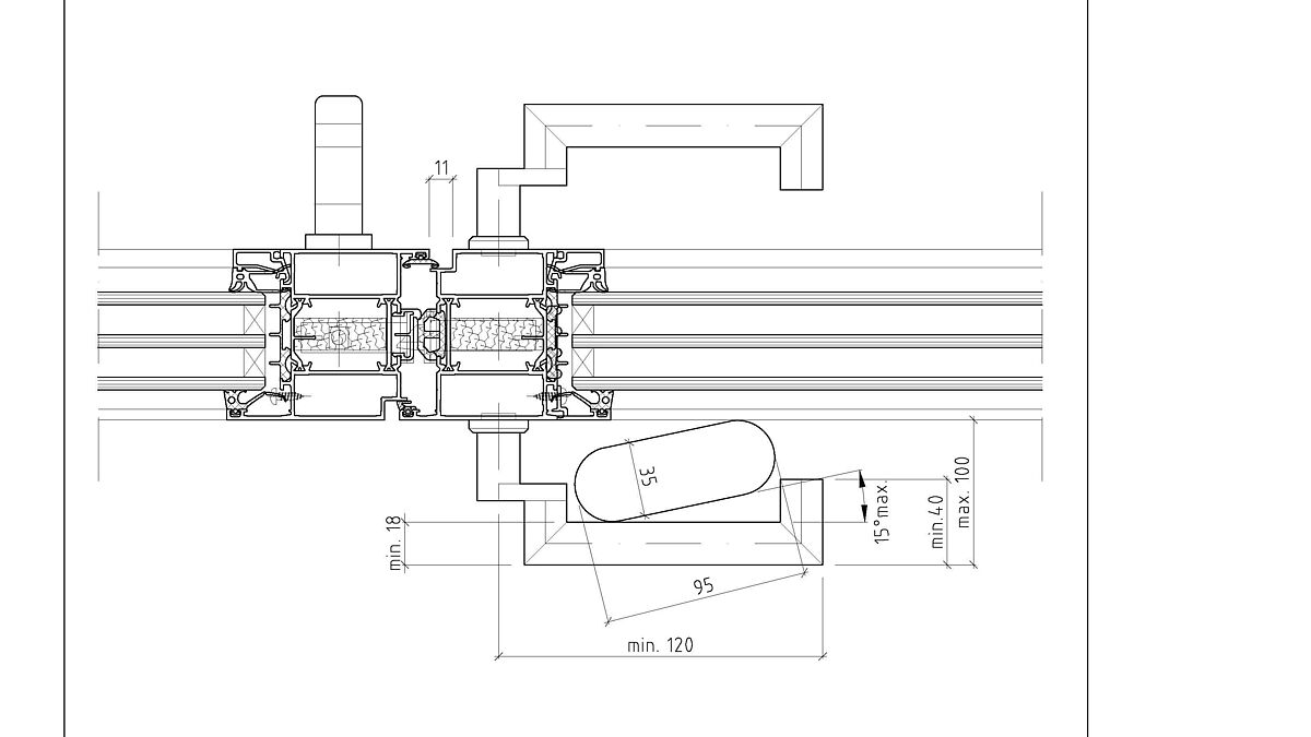
Minimal- und Maximalabmessungen von Drückern nach SN EN 179.
Minimal- und Maximalabmessungen von Drückern nach SN EN 179.

Drücker

Bei der Auswahl des Drückers sollte darauf geachtet werden, dass die Gefahr des Hängenbleibens mit den Kleidern minimiert wird. Die SN EN 179 schreibt Drücker mit entsprechenden Minimal- und Maximalabmessungen vor (siehe Abbildung).