Januar 2021
Januar 2021
Abo

Metall und Glas für den Genuss

Fenster und Fassaden

Macardo: Whisky-Liebhaber sollten sich diesen Namen merken. Die Macardo Swiss Distillerie in Strohwilen im Kanton Thurgau hat sich weiterentwickelt und überzeugt heute mit modernsten Infrastrukturen in neuen Betriebsgebäuden. Bautechnisch werden die Neubauten geprägt von verschiedensten hochklassigen Bauteilen aus Metall und Glas.


Login

Danke für Ihr Interesse an unseren Inhalten. Abonnenten der Fachzeitschrift metall finden das Login für den Vollzugriff im Impressum der aktuellen Printausgabe. Das Passwort ändert monatlich.


Jetzt registrieren und lesen. Registrieren Sie sich um einzelne Artikel zu lesen und einfach per Kreditkarte zu bezahlen. (CHF 5,- pro Artikel)
Als registrierter Benutzer haben Sie jederzeit Zugriff auf Ihre gekauften Artikel.

Sollten Sie als interessierte Fachkraft im Metall-, Stahl- und Fassadenbau die Fachzeitschrift metall tatsächlich noch nicht abonniert haben, verlieren Sie keine Zeit und bestellen Sie Ihr persönliches Abonnement gleich hier.

Links die Brennerei, rechts das Fasslager. Das Farbenspiel soll die natürlichen Herbstfarben der Thurgauer Landschaft imitieren.
Links die Brennerei, rechts das Fasslager. Das Farbenspiel soll die natürlichen Herbstfarben der Thurgauer Landschaft imitieren.

Fenster und Fassaden

Metall und Glas für den Genuss

Macardo: Whisky-Liebhaber sollten sich diesen Namen merken. Die Macardo Swiss Distillerie in Strohwilen im Kanton Thurgau hat sich weiterentwickelt und überzeugt heute mit modernsten Infrastrukturen in neuen Betriebsgebäuden. Bautechnisch werden die Neubauten geprägt von verschiedensten hochklassigen Bauteilen aus Metall und Glas.

Text: Redaktion, Bilder: Daniel Schmid, Agentur BBK und Ernst Weber AG

Vor wenigen Wochen haben Martina und Andreas Bössow ihre Genuss- und Erlebniswelt, die Macardo Swiss Distillerie in Strohwilen, Gemeinde Amlikon-Bissegg, eröffnet. In nur zweijähriger Bauzeit wurde das bestehende Anwesen mit dem 1904 erbauten Käsereigebäude ausgebaut und um beeindruckende Neubauten erweitert. Im alten Gebäude befindet sich heute die Brennerei, in den angrenzenden Neubauten ein Einkaufsshop, Eventraum, Lounge, Hotellerie und daneben das Fasslager.

Für Geniesser mit Weitblick

Neben dem Hauptgeschäft, der Herstellung von Whiskys und anderen hochprozentigen Spezialitäten, hat Macardo dem Geniesser einiges zu bieten. Ob ein edler Whisky oder ein fruchtiger Cocktail, in der Macardo Honesty Bar mit Cigar Lounge steht der Genuss an erster Stelle. Drinnen im stilvollen Ambiente, draussen auf der grossen Terrasse mit Blick auf Alpstein und Säntis. Hier kann sich der Gast wohlfühlen.
Die hauseigene Hotellerie mit zehn komfortablen und grosszügigen Bed & Breakfest-Zimmern und zwei Appartements ermöglicht den Gästen, den Abend angenehm ausklingen zu lassen und den Tag bei beeindruckendem Panoramablick zu beginnen. Im rustikal eingerichteten Walk-in-Shop wird das ganze Macardo-Sortiment präsentiert. Für Kunden finden hier auch regelmässig Tasting-Events statt.  

 

«Die grosse Herausforderung bei dieser Fassade lag für unsere Firma ganz klar in der Logistik.» Roman Rüttimann, Geschäftsführer Ernst Weber AG

 

Gebrannt wird mit Holz

Im alten, vor über hundert Jahren erbauten Käsereigebäude werden seit Generationen hochwertige Rohstoffe zu erstklassigen Spezialitäten verarbeitet. Früher war es Käse, heute sind es die Whiskys, Spirits, Vieilles und Tresterdestillate von Macardo.
Destillierirt wird hier von Hand, schonend, in kleinen Mengen und nach traditionellen Verfahren.
«Als eine von wenigen Schweizer Destillerien brennen wir heute noch mit Feuer», erklärt Andreas Bössow gegenüber der «Metall» und ergänzt: «An diesem Handwerk halten wir fest, das Feuer ist Teil unserer Identität und unserer Philosophie. Kombiniert mit innovativen Technologien und einem branchenweit einmaligen Nachhaltigkeitskonzept entstehen hier in Strohwilen edle Destillate, die unsere Handschrift tragen.»

Die Ostfassade ist ebenfalls mit farbigen Lamellenprofilen bestückt.
Die Ostfassade ist ebenfalls mit farbigen Lamellenprofilen bestückt.

Nachhaltigkeit prägt den Neubau

Bei der Planung und Realisation des Neubaus setzten Martina und Andreas Bössow den Fokus speziell auch auf nachhaltige, energetisch optimierte Lösungen. Gekühlt wird mit Quellwasser, geheizt mit Holz, Solarenergie und Erdwärme und für die Gebäudehülle kamen nur hochisolierte Komponenten zur Anwendung. Nirgendwo geht Energie verloren. Auch das Abwasser wird genutzt und aus der Schlempe – dem Rückstand beim Brennvorgang – wird in einer Biogasanlage Energie gewonnen. 

Farbige Profile und Glas für das Fasslager

Unbestritten, das «Whisky Lager», das hohe, langgezogene Gebäude mit dem edlen Frontfenster zur Strasse hin und den farbigen, längsseitigen Lamellenfassaden, ist einzigartig in seiner Erscheinung. Es bildet – zusammen mit dem alten Gebäude – die Einfahrt zu Shop und Empfang. Das Farbenspiel an den Fassaden soll die natürlichen Herbstfarben der Thurgauer Landschaft imitieren. Als vorgehängte, hinterlüftete Konstruktion gebaut, sind an der Fassade exakt 16 verschiedene Farben auszumachen. Diese sind unregelmässig angeordnet und es lässt sich kaum eine rhythmische Reihenfolge darin erkennen. Lediglich bei den etwas dominanten, weissen Farben sind Minimalabstände von einem Meter und mehr festzustellen. 

Die farbigen Lamellen bestehen aus objektspezifisch hergestellten Aluminium-Rechteckprofilen mit inneren Schraubkanälen. Total wurden 6,8 km davon verarbeitet. Die Profile sind im fertig geschnittenen und bearbeiteten Zustand in den erwähnten Farben pulverbeschichtet worden. Am Gebäude gut zu erkennen sind die vertikalen Fassadenteilungen. Die einzelnen Bahnen weisen unterschiedliche Breiten auf. Jede Bahn wiederum besteht aus vier übereinander angeordneten Fassadenelementen. Hierfür wurden vertikale, lasergeschnittene Blechstreifen mit den Lamellenprofilen zu den entsprechenden Einheiten verschraubt. Die Montage erfolgte elementweise – von unten nach oben – auf spezielle Unterkonstruktionen mit gesichertem Einhängesystem. Die in der Fassade integrierten Fensterelemente sind in Blechzargen gefasst und grenzen sich somit technisch und optisch klar von der Fassadenhaut ab.

«Die grosse Herausforderung bei dieser Fassade lag für unsere Firma ganz klar in der Logistik», erläuterte Roman Rüttimann, Geschäftsführer der ausführenden Ernst Weber AG, bei der Objektbegehung. «Mehr als 2000 Profile» – so Rüttimann weiter – «in 16 unterschiedlichen Farben und diversen Längen zu lagern, in der richtigen, jedoch unregelmässigen Reihenfolge auf die entsprechenden Elementrahmen zu schrauben und diese am Bau folgerichtig auf die Unterkonstruktionen zu montieren, erforderte eine durchdachte Vorgehensweise und entsprechende Konzentration von allen Beteiligten.»

Innenansicht des Frontfensters Fasslager.
Innenansicht des Frontfensters Fasslager.

Dominantes Frontfenster am Fasslager

Das riesige, bis zum Giebelspitz führende Frontfenster am Fasslager wirkt, als wäre es gebaut, um Kunden und Gäste zu empfangen. Die schwarze Blechzarge, das spiegelnde Glas und die Filigranität der Sprossen generieren eine gewisse Eleganz. Für Rahmen und Sprossen der 5 m breiten und 9 m hohen Front kam das System WD72 von Heroal zur Anwendung. Die Front besteht aus vier übereinandergestapelten Elementen und ist zwischen den beiden Betonwänden befestigt. Die Aussenseiten der Lappenprofile stehen alle auf derselben Flucht. Speziell an dieser Konstruktion ist ein Mix aus Aluminium-Lappenprofilen und einem statisch bedingten Pfosten-Riegel.
Raumseitig, jeweils auf Höhe der Elementstösse, sind drei Verbindungs- und Stützprofile eingebaut Diese aus RHS 150 x 100 x 8 bestehenden, horizontal eingespannten Träger verbinden und stabilisieren einerseits die beiden Betonwände und stützen / tragen zugleich die Aluminiumfront. Aussenseitig an den kräftigen Stahlrohren sind Pfosten-Riegel-Aufsatzkomponenten von Raico aufgeschweisst. Die Fronten mit ihren Lappenprofilen sind horizontal – wie Glas – in die Pfosten-Riegel-Profilsysteme eingesetzt. Lediglich die durchlaufenden Deckleisten heben sich von der Fassadenflucht etwas ab.

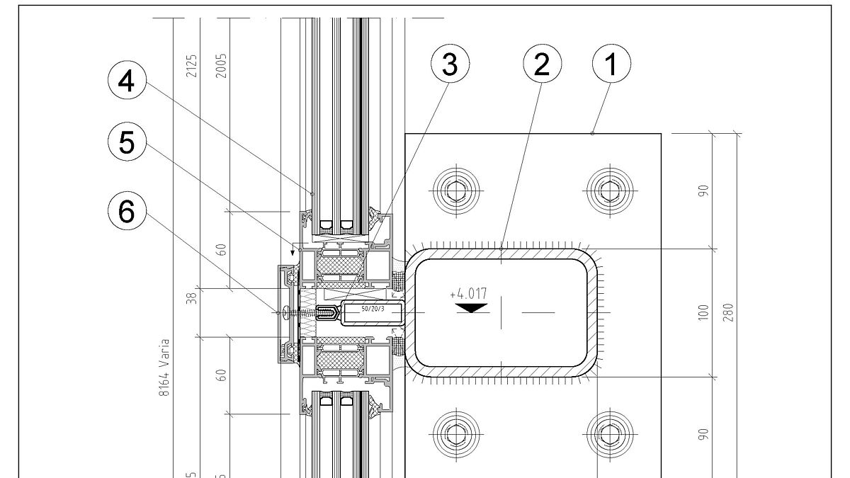
Horizontalschnitt Statikprofil Fenster Fasslager. Die Front besteht aus vier übereinandergestapelten Elementen.1  Befestigungsplatte Statikprofil2  Statikprofil 150 x 100 x 8 mm3  Geschweisstes Aufsatzprofil System Raico4  3-fach Isolierglas5  Lappenprofil System Heroal WD726  Aluminium-Deckleiste (horizontal)
Horizontalschnitt Statikprofil Fenster Fasslager. Die Front besteht aus vier übereinandergestapelten Elementen.
1  Befestigungsplatte Statikprofil
2  Statikprofil 150 x 100 x 8 mm
3  Geschweisstes Aufsatzprofil System Raico
4  3-fach Isolierglas
5  Lappenprofil System Heroal WD72
6  Aluminium-Deckleiste (horizontal)

Fünf Bergspitzen für die Südfassade

Gleichmässigkeit, Rhythmik, dunkles Metall und leicht spiegelndes Glas dominieren das Erscheinungsbild der Südfassade. Dahinter befinden sich im Erdgeschoss die Lounge, Büros, Aufenthaltsräume und in den Obergeschossen die grosszügigen und farblich abgestimmten Gästezimmer.
Die Südfassade wird durch die vorstehenden, vertikal verlaufenden Stützenverkleidungen in fünf Segmente geteilt. In Kombination mit den Firstverkleidungen wirken diese Segmente wie fünf in die Nischen gesetzte Teilfassaden, die mit ihren Formen ansatzweise die Konturen der nahegelegenen Churfirsten wiedergeben.
Wer genauer hinschaut stellt fest, dass diese fünf Teilfassaden, von jeweils 7 m Breite und 12 m Höhe, auf zwei unterschiedlichen Niveaus stehen. Wer ein geometrisches Auge hat, dem wird wohl bewusst, dass sich hinter diesen fünf Teilfassaden anspruchsvolle Geometrien verbergen. Die Stirnseiten des Beton-Elementbaus stehen wohl auf einer Flucht. Die nach innen führenden Wände jedoch, an welche auch die Fassaden anschliessen, verlaufen schräg zur Fassadenflucht.
Diese Gegebenheiten generierten verschiedene dreidimensionale Anschlüsse an das Mauerwerk und an die Holzkonstruktion im Dachgeschoss. Insbesondere die Blechverkleidungen erwiesen sich als entsprechend anspruchsvoll und erforderten viele dreidimensionale Schifterschnitte.

Die fünf Spitzen der Südfassade imitieren die nahegelegenen Churfirsten.
Die fünf Spitzen der Südfassade imitieren die nahegelegenen Churfirsten.

Elementtrennung bei den Zwischenböden

In ihrer Bauweise entspricht die Südfassade weitgehend dem grossen Frontfenster des Fasslagers. Ebenfalls sind hier die einzelnen, geschossweise getrennten Elemente aus Heroal-Lappenprofilen vom System WD72 aufeinandergestapelt. Jedoch weist der Bau zwei betonierte Zwischengeschosse auf, welche ein Abstützen und Führen im Bereich der Elementübergänge erlaubte. Lediglich im obersten, höheren Geschoss wurde als Versteifung und Abstützung ein horizontal eingespanntes RRK 100 x 100 x 10 eingesetzt. Dieses ist aussenseitig ebenfalls mit einer aufgeschweissten Raico-Aufsatzkonstruktion versehen und nimmt die Rahmenprofile der Fronten auf. Raumseitig sind diese Stahlträger mit schwer entflammbaren Platten verkleidet.
Die geschosstrennenden Bereiche sind mit eingesetzten Aluminiumpaneelen bestückt. Aussenseitig generiert ein durchlaufender Blechkoffer die gewünschte Homogenität. Während für die Obergeschosse Rafflamellenstoren darin integriert sind, wurden für die Beschattungen im Erdgeschoss, aufgrund der Türfronten und ihrer Begehbarkeit, Knickarmmarkisen daran angebracht.
Die bereits erwähnten, vorstehenden Stützenverkleidungen sind aus mehrfach abgebogenen Aluminiumblechen geformt und an Bolzen hängend / dilatierend an ein Vertikalprofil befestigt. Diese vertikal zeichnenden Blechkästen enthalten und verbergen weitere Infrastrukturen wie beispielsweise die Dachwasserabläufe, Musiklautsprecher und dienen zur Anbringung einer späteren LED-Beleuchtung.
Die Befestigung der Fronten an die Dachsparren erfolgte über ein zweiteiliges U-Profil, das allfällige Bewegungen des Holzbaus geräuschlos aufnehmen kann.

 

Eingangsfassade zum Shop, im selben Stil gebaut wie die Südfassade: Die automatisierte Schiebetüre mit Windfang wirkt einladend und schützt vor unerwünschter Abkühlung der Raumluft.
Eingangsfassade zum Shop, im selben Stil gebaut wie die Südfassade: Die automatisierte Schiebetüre mit Windfang wirkt einladend und schützt vor unerwünschter Abkühlung der Raumluft.

Viele weitere Metallbauelemente

Neben einer komplexen Eingangsfront zum Shop produzierte und lieferte die Ernst Weber AG viele weitere Metallbauelemente wie beispielsweise Türen mit Zutrittskontrollen, Brandschutzabschlüsse, Innen- und Aussenfenster und sogar das direkt am Gebäude angrenzende Wartehäuschen für den regionalen Busverkehr. ■

Zwei Brandschutzverglasungen bilden einen geschützten Korridor im Innern.
Zwei Brandschutzverglasungen bilden einen geschützten Korridor im Innern.

 

Bautafel 

Objekt:
Macardo Swiss Distillerie, Amlikon-Bissegg
Bauherrschaft:
Martina und Andreas Bössow, Amlikon-Bissegg
Architekt:
Architectur Design & Development, Dubai
Fassaden und Metallbau:
Ernst Weber AG, Wetzikon

Das Fachregelwerk Metallbauerhandwerk – Konstruktionstechnik enthält im Kap. 2.1 wichtige Informationen zum Thema «Fenster».