November 2020
November 2020
Abo

E30-Liftverglasungen für «The Circle»

Brandschutzfassaden: Forster Thermfix Vario

Am Flughafen Zürich ist The Circle, die zurzeit grösste Baustelle der Schweiz, nach fünf Jahren Bauzeit vollendet. Auch die Innenausbauten sind so weit fertiggestellt und dem Betrieb übergeben. Dazu gehören auch die hochtransparenten Brandschutz-Liftverglasungen, welche die Blaser Metallbau AG mit filigransten Pfosten-Riegel-Profilen vom Typ Forster Thermfix Vario realisierte.


Login

Danke für Ihr Interesse an unseren Inhalten. Abonnenten der Fachzeitschrift metall finden das Login für den Vollzugriff im Impressum der aktuellen Printausgabe. Das Passwort ändert monatlich.


Jetzt registrieren und lesen. Registrieren Sie sich um einzelne Artikel zu lesen und einfach per Kreditkarte zu bezahlen. (CHF 5,- pro Artikel)
Als registrierter Benutzer haben Sie jederzeit Zugriff auf Ihre gekauften Artikel.

Sollten Sie als interessierte Fachkraft im Metall-, Stahl- und Fassadenbau die Fachzeitschrift metall tatsächlich noch nicht abonniert haben, verlieren Sie keine Zeit und bestellen Sie Ihr persönliches Abonnement gleich hier.

Liftverglasung Typ H 12. Wie bei allen von Blaser Metallbau AG mit Forster Thermfix Vario hergestellten Elementen erfüllt auch dieser Abschluss die Brandschutzanforderung E30.
Liftverglasung Typ H 12. Wie bei allen von Blaser Metallbau AG mit Forster Thermfix Vario hergestellten Elementen erfüllt auch dieser Abschluss die Brandschutzanforderung E30.

Brandschutzfassaden: Forster Thermfix Vario

E30-Liftverglasungen für «The Circle»

Am Flughafen Zürich ist The Circle, die zurzeit grösste Baustelle der Schweiz, nach fünf Jahren Bauzeit vollendet. Auch die Innenausbauten sind so weit fertiggestellt und dem Betrieb übergeben. Dazu gehören auch die hochtransparenten Brandschutz-Liftverglasungen, welche die Blaser Metallbau AG mit filigransten Pfosten-Riegel-Profilen vom Typ Forster Thermfix Vario realisierte.

Text: Redaktion, Bilder: Blaser Metallbau AG

The Circle steht für eine konsequente Weiterentwicklung der kommerziellen Zentren am Flughafen. Die neue Destination wird in der Atmosphäre eines internationalen Geschäftsviertels ein Ort für Business und Lifestyle, für Brands, Medizin, Bildung, Kultur und Unterhaltung, Hotellerie und Kongresse. Es werden für ein lokales und internationales Publikum kommunikative, serviceorientierte Orte kreiert und für Mieter attraktive Räume mit hoher Flexibilität und Synergien untereinander geschaffen. Nach einer Bauzeit von rund fünf Jahren bietet das Werk des japanischen Stararchitekten Riken Yamamoto seinen Betreibern die gigantische Nettonutzfläche von 180000 m 2 .

Brandschutz-Liftverglasungen

Beim Innenausbau hatte auch die Blaser Metallbau AG tatkräftig mitgewirkt. Die Andelfinger Metallbauunternehmung plante, produzierte und lieferte rund 500 m 2 transparente Liftverglasungen, inklusive der Edelstahlzargen um die Lifttüren. Die technischen Ansprüche bei diesen Bauteilen waren nicht ganz alltäglich, denn diese Innenabschlüsse hatten die Brandschutzklasse E30 zu erfüllen.

Profilsystem Forster Thermfix Vario gewählt

Blaser entschied sich, die verschiedenen E30-Pfosten-Riegel-Elemente im System Forster Thermfix Vario zu bauen. «Während der Evaluationsphase, in der es darum ging, das Profilsystem definitiv auszuwählen, spürten wir die kompetente und zielführende Unterstützung der Forster Profilsysteme AG deutlich», erläuterte Rolf Bechtold, Projektleiter der Blaser Metallbau AG, gegenüber der «metall» und fügte an: «Denn schliesslich gab es dannzumal doch die eine oder andere technische Hürde, die wir zu überwinden hatten. Weitere Kriterien wie eine fundierte Schulung, spezielle Werkzeugkästen, ein ästhetisch und qualitativ hochstehendes Produkt sowie das interessante Preis-Leistungs-Verhältnis führten dazu, dass wir uns für Forster entschieden.»

Insgesamt baute Blaser 22 Stück in ihrer Art unterschiedliche E30-Liftverglasungen im System Forster Thermfix Vario. Dies in den drei verschiedenen Gebäudeteilen H 12, H 15, H 16 in mehreren Kernen und über acht Geschosse. Stellvertretend für die vielen unterschiedlichen Liftverglasungen wird in diesem Beitrag auf die Liftverglasung Typ H 12 eingegangen:
Sie wirkt hoch transparent und edel, die 4,8 m breite und 6,5 m hohe Liftverglasung mit ihren filigranen Deckleisten von nur 45 mm Ansichtsbreite. Mehr Glas wäre bei diesen E30-Liftverglasungen nicht mehr möglich gewesen, denn schliesslich hatten auch die umlaufenden Anschlusspaneele sowie der horizontal durchlaufende Abfangträger der Brandschutzklasse E30 zu entsprechen und die strengen Auflagen zu erfüllen.
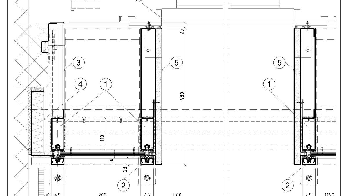
Die in diesem Fall für unbeheizte Räumlichkeiten konstruierte Pfosten-Riegel-Front besteht aus einem umlaufenden Rahmen aus liftseitigem Stahlrohr vom 45 mm Breite und 110 mm Tiefe sowie hallenseitigen, farblos eloxierten Aluminium-Deckleisten von 45 x 23 mm, alles vom System Forster Thermfix Vario. Aufgrund der unbeheizten Situation war keine thermische Trennung erforderlich, was zu einer Glasstärke von lediglich 14 mm führte. Obschon vom Profilsystem gegeben, war die kontrollierte Entwässerung über das systeminterne Drainage-System für diese Innenräume nicht zu berücksichtigen.

 

1. Stahlrohr 45 x 110 mm, System Forster Thermfix Vario

2. Aluminium-Deckleiste, System Forster Thermfix Vario

3. Ergänzungsblech 2 mm, Stahl

4.  Anschlusspaneel E30

5. E30-Edelstahl-Lifttürzarge

6. Anschlusszarge Liftbauer

 

«Während der Evaluationsphase, in der es darum ging, das Profilsystem definitiv auszuwählen, spürten wir die kompetente und zielführende Unterstützung der Forster Profilsysteme AG deutlich.» Rolf Bechtold, Projektleiter bei der Blaser Metallbau AG

Profilvertiefungen mit Blechen

Die beschriebene Liftverglasung lässt sich in zwei Teilbereiche aufteilen: unten der fünf Felder zählende Teil um die Lifttüren, oben der zehn Felder umfassende Teil mit Glas- und Paneelfüllungen. Direkt über den Türen ist der erwähnte Abfangträger aus einem IPE 160 eingebaut, der die anfallenden Kräfte über die seitlichen Mauerwerke abträgt und auch zur Aufhängung der Lifttüren dient. Dass diese Konstruktionsart mit Profilerweiterungen und Trägerverkleidungen in E30 nicht alltäglich ist und verschiedene Weiterentwicklungen zur Systemlösung erforderte, versteht sich von selbst.
Die ganze Konstruktion weist eine totale Rahmentiefe von 500 mm auf. Innere, abgebogene Stahlbleche ergänzen die Forster Thermifx Vario-Profilrohre zu einer 500 mm tiefen Zarge. Die Befestigung erfolgte umlaufend über angeschweisste Flachstahllaschen, die an die bauseits im Beton eingelassenen Schienenprofile geschraubt sind. Befestigungen mit Bohrankern waren nicht zugelassen. Die E30-tauglichen Anschlusszargen an das Mauerwerk sind zu zweischaligen Stahlblechpaneelen zusammengebaut. Gefüllt mit Promatec-Gipsplatten und Mineralwolle erfüllen sie die brandschutztechnischen Anforderungen.
Edel und robust sind die Lifttürzargen ausgeführt. Bestehend aus mehrfach abgekanteten Edelstahlblechen und hinterlegt mit Gipsplattenfüllungen, sind sie zu hitze- und druckbeständigen Paneelen zusammengebaut. Für alle Verglasungen kam Pilkington Pyrodur 30-200 mit 0,76-mm-PVB-Folie zur Anwendung.

Die schmalen Ansichtsbreiten der Deckleisten von Forster Thermfix Vario mit 45 mm ermöglichten höchst transparente Konstruktionen.
Die schmalen Ansichtsbreiten der Deckleisten von Forster Thermfix Vario mit 45 mm ermöglichten höchst transparente Konstruktionen.

Anlieferung und Montage sorgfältig geplant

Baustellen dieser Grössenordnung fordern von den Unternehmungen ganz andere logistische und administrative Leistungen als beim Bau eines üblichen Geschäftshauses. So stand für die Anlieferungen beispielsweise ein Online-Planungstool zur Verfügung. Hier waren die vorgesehenen Lieferungen mindestens drei Tage vorher anzumelden. Zudem waren der Umschlagplatz sowie die notwendigen Hebegeräte wie Kran usw. frühzeitig zu buchen. Die Anlieferung hatte dann in einem Zeitfenster von 15 Minuten zu erfolgen, andernfalls wurde die Annahme verweigert.
Damit die genauen terminlichen Anforderungen eingehalten werden konnten, wurden auch von Seiten der Forster Profilsysteme AG sämtliche geforderten Lösungsvorschläge und Materiallieferungen genau und professionell abgewickelt und in jeder Bauphase eingehalten.

 

Für die Verglasung kam neutrales E30-Brandschutzglas Typ Pilkington Pyrodur 30-200 mit 0,76-mm-PVB-Folie (Total 14 mm) zur Anwendung.
Für die Verglasung kam neutrales E30-Brandschutzglas Typ Pilkington Pyrodur 30-200 mit 0,76-mm-PVB-Folie (Total 14 mm) zur Anwendung.

The Circle – eine spannende Herausforderung

«Die Tatsache, dass sich unsere Liftverglasungen über drei Gebäudeteile mit mehreren Kernen und Geschossen verteilten, machte dieses Vorhaben nicht einfacher», so Rolf Bechtold. «Bereits bei den Massaufnahmen waren wir stark gefordert, schliesslich gab es neben der Massaufnahme an Mauerwerken viele andere Gegebenheiten wie bereits installierte Lifte, Rohrleitungen, Kabelkanäle sowie in Planung stehende Wand- und Deckenverkleidungen, Bodenbeläge und angrenzende Türen zu berücksichtigen und in die Planung einfliessen zu lassen. Neben den hohen architektonischen Anforderungen bildeten auch die vielen Unternehmerschnittstellen sowie verschiedene Freigabeinstanzen einen spannenden Kernpunkt im Planungsprozess.
Rückblickend lässt sich feststellen, dass es für uns äusserst lohnenswert war, die ganze Logistik detailliert zu planen und für die Beschaffungs- und Produktionsplanung entsprechend Zeit zu investieren. Dank unserer neuen ERP AP+ Software waren wir in der Lage, sämtliche Schritte detailliert zu planen und Qualität und Termine zuverlässig einzuhalten.»      ■

Bautafel / Panneau de chantier

Bauherrschaft:
Flughafen Zürich / Swiss Life
Auftraggeber:
HRS GU AG, Zürich
Architekt:
Riken Yamamoto, Tokio
Metallbau Liftverglasungen:
Blaser Metallbau AG, Andelfingen
Profilsystem:
forster thermfix vario , 45 mm

Das Fachregelwerk Metallbauerhandwerk – Konstruktionstechnik enthält im Kap. 1.13 wichtige Informationen zum Thema «Brandschutz».